POINT OF VIEW

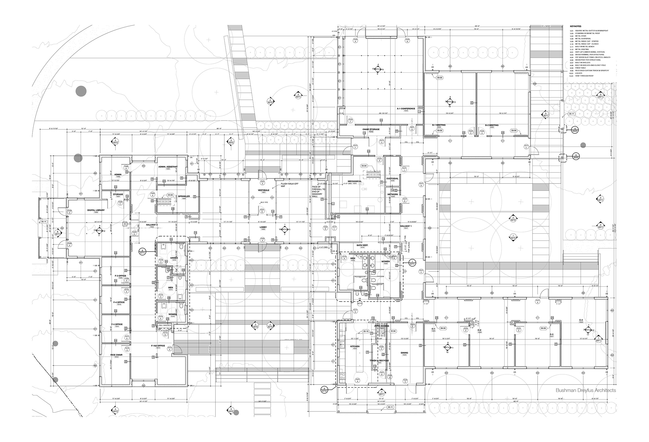
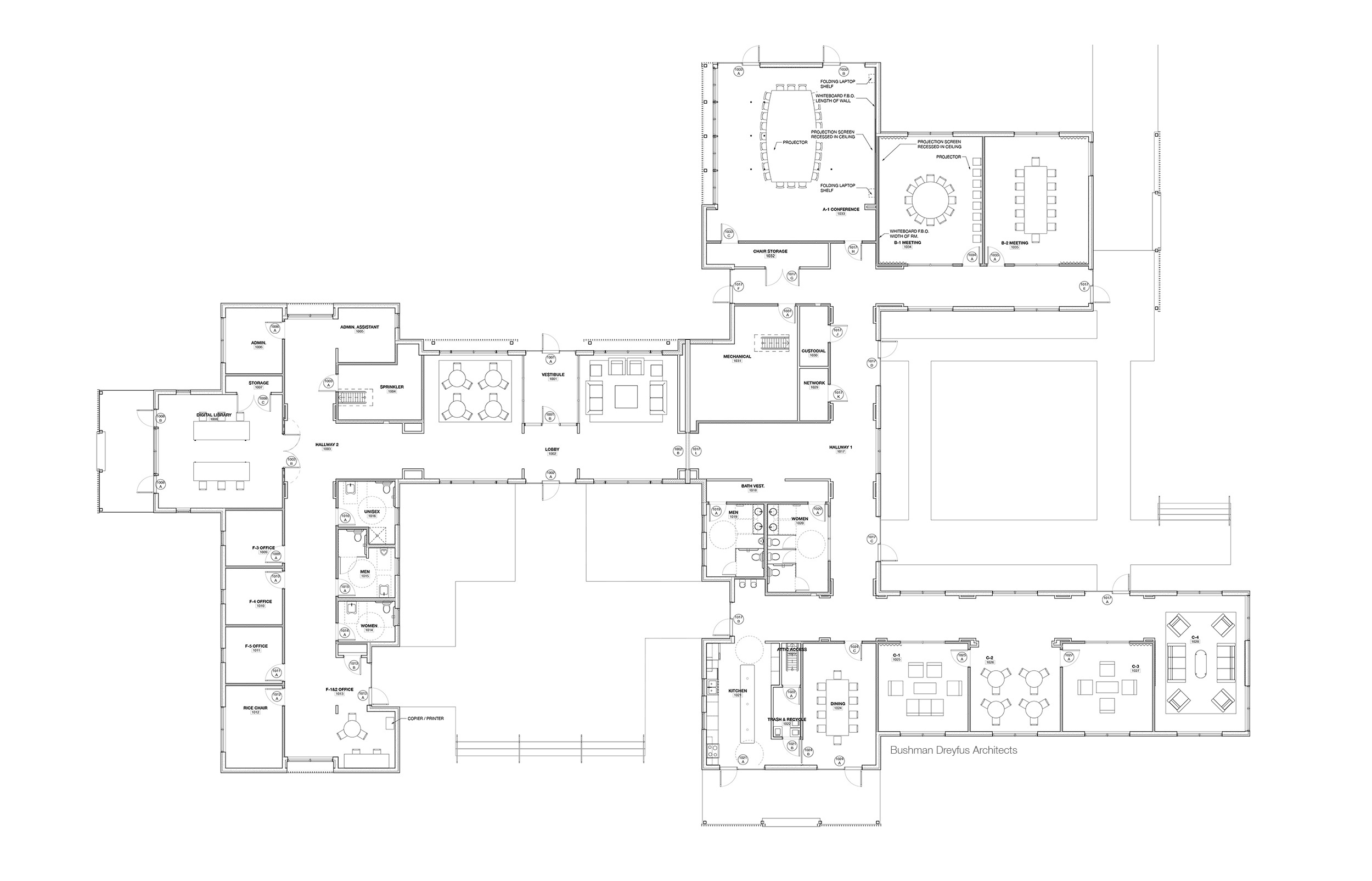
A retreat center named Point of View for George Mason’s School for Conflict Analysis and Resolution. The 30 acre site will house four new buildings: one conference center and three guest cottages. The form and materiality of the buildings were derived from vernacular barn structures. The shape and siting of the buildings were calibrated to maximize tree protection, views, privacy, and intimacy with the nature of the site. As the LEED project administrator with Bushman Dreyfus Architects I was charged with all research and coordination to ensure the conference center would achieve LEED Silver certification. Sustainable design features included: deconstruction and material reuse from an existing building on site, geothermal energy, natural ventilation, thermally modified lumber siding, cellulose insulation, and waterless urinals, among others.